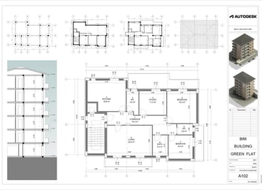
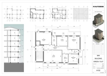
BIM-CAD

The 3D models and floor plans were created with Autodesk Revit, a BIM software that integrates geometry, information, and technical data within a single design environment. The use of Revit ensures accurate and coordinated representations, maintaining consistency between 3D models, plans, elevations, and sections, while facilitating project management throughout all phases.